
生駒で建設していた住宅が竣工したので、引越しに先立ち、事務所で撮った写真をまとめました。
正面に窓がない。
正面は建物の顔ですから、そこに付ける窓は非常に大切です。しかし今回は建築条件付きのために普通のアルミサッシの窓しかつくれません。そこで敢えて窓は無しとして、壁で見せるファサードとしました。壁をファサードとすることは、設計さえ工夫すれば、技術力が高くない施工業者でも十分可能です。

裏手。大きな穴はバルコニー。ありきたりのアルミ製バルコニーではデザイン上どうしようもないので、建物の四角の中に収めました。バルコニー床はFRP防水を行っています。

大きな吹き抜けのある1FLDK。内部の部屋は全てここに面しています。家のどこにいても家族の雰囲気が感じられる空間になりました。裏の事情としては、建築条件の中に延床面積の制限があったので、吹き抜けをつくることで延床を増やさずに大きな空間を確保しています。

LDKは長い年月の間で色々な使い方ができるよう、間切って2部屋にもできるよう工夫しました。

戸建て住宅では、寝室+子供部屋×2+客間or和室、で4LDKのご要望を頂くことは多々あります。しかしそれではどう工夫しても建売と同じコマギレ部屋の組み合わせになってしまいます。空間の使い方を何重にも重複させておくことでそういう要望や不動産屋的住宅観をクリアさせつつ、建築的な魅力をもった空間を創ることができます。

階段はタモ集成材。ちなみに床もタモ無垢フローリング。普段建売をつくっている工務店サンからは、かなり拒否反応がありましたが、お施主さまの強い援護で実現。慣れない施工に苦労した様子でしたが、こうやって出来上がってみるとなかなか良い感じです。

2階は吹き抜けに面して家族みんなのライブラリ。そこから主寝室、子供部屋x2、バルコニーへ。個室に閉じこもるのではなく、できるだけ家族が同じ時間をすごせるようにとの考えから子供部屋は「子寝室」と捉えて、わざと小さめに計画しています。そして何より無駄な廊下スペースを有効活用。

夜景。正面に窓がないつくりは、防犯上も何となく安心感がありますね。

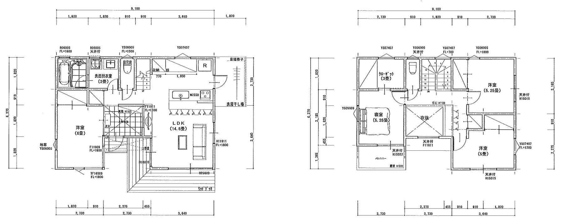
1階平面図。LDKを中心にコンパクトにまとまっています。エントランスホールを広めに造っているのは、お施主さまのご趣味のサーフボードをディスプレイするためです。

2階平面図。細長い吹抜に面したライブラリ。
