
廃墟ビルを再生したシェアハウス+ゲストハウス
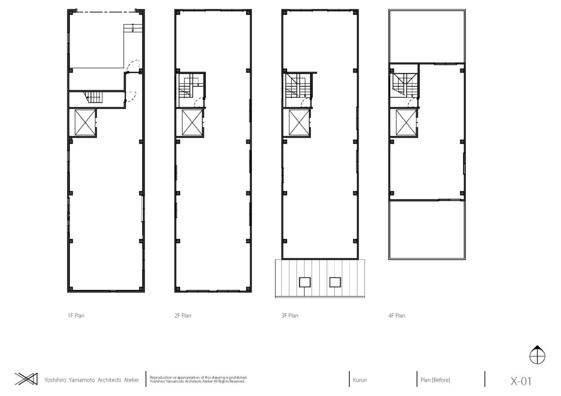
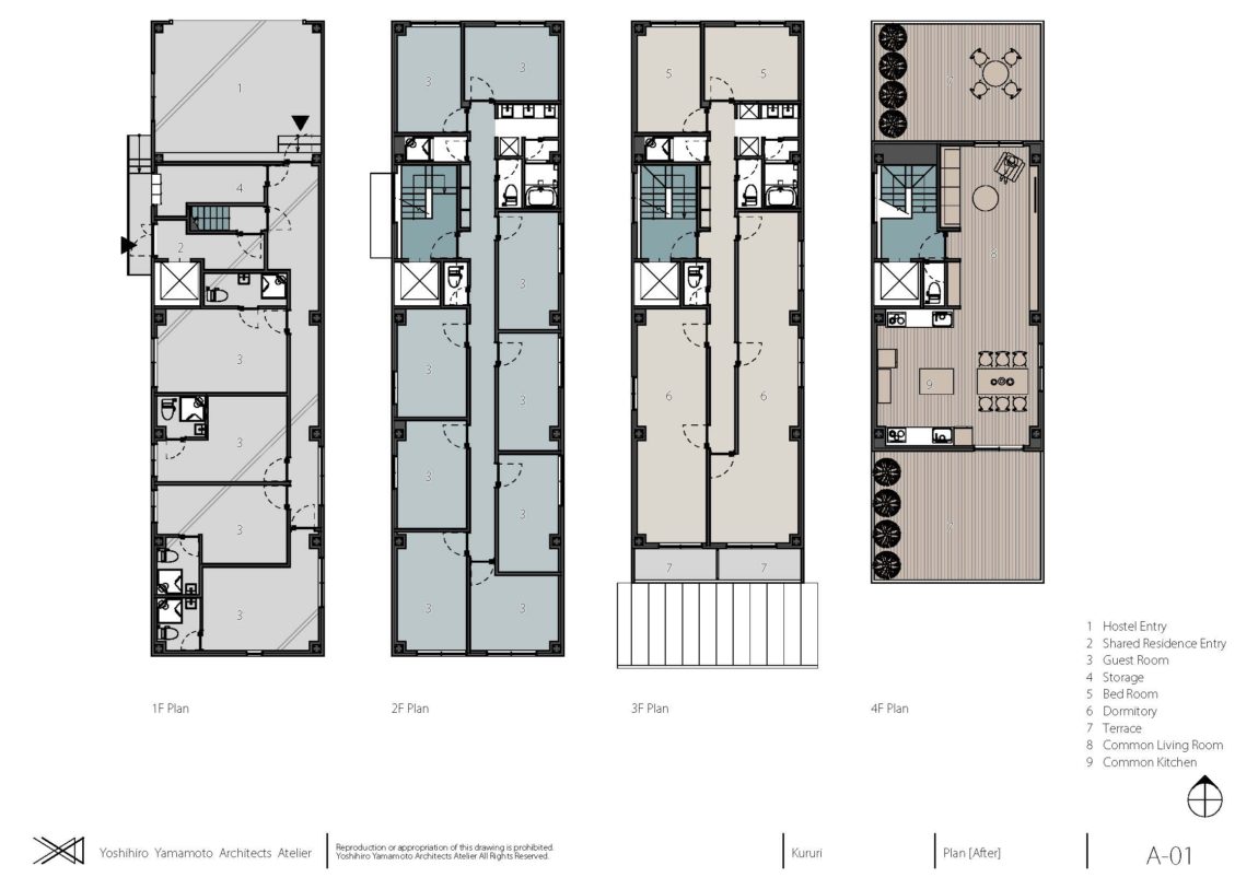
奈良市京終。クライアントが購入された築25年程の中古ビルを居住系施設として再生するプロジェクト。既存建物は菓子工場・倉庫として建設され、その後幾度かのつぎはぎリフォームを繰り返しながら事務所や従業員宿舎として運用されていたため、人荷用のエレベーターは不必要に大きく、間仕切りは防火上・避難上、危険な状態となっており再利用できない状況でした。現在の建築基準法・消防法・旅館業法を全て満足し、なおかつ事業としても成立する可能性を検証した結果、女性単身者向けシェアハウスとゲストハウスの複合建築物として設計し直すこととなりました。構造躯体を既存利用することで用途変更に伴う構造計算の遡及を避け、大きすぎるエレベーターは撤去して竪穴区画対応のホームエレベーターに変更、ゲストハウスとシェアハウスの動線を分けながら効率的にプランニングしました。高性能断熱材や樹脂サッシ、BEMS等を導入することでSII(環境共創イニシアチブ)のZEB化補助金を受け、居住性能を高めつつ事業コストの大幅な圧縮にも成功しています。



















- 概要
-
計画|2015-2018 新築|1992 所在地|奈良市 用途|寄宿舎(シェアハウス)・旅館(ゲストハウス) 構造規模|鉄骨造4F 敷地面積|68坪[226m2] 坪単価対象面積|150坪[495m2]
- 協働
-
設計監理|山本嘉寛[YYAA] 構造設計協力|[山口建築設計事務所] 施工|[亀益建設] シェアハウス募集|[ひつじ不動産]
- 助成
-
ネット・ゼロ・エネルギー・ビル実証事業|[SII(環境共創イニシアチブ)]





