
1つ屋根の下の2世帯住宅
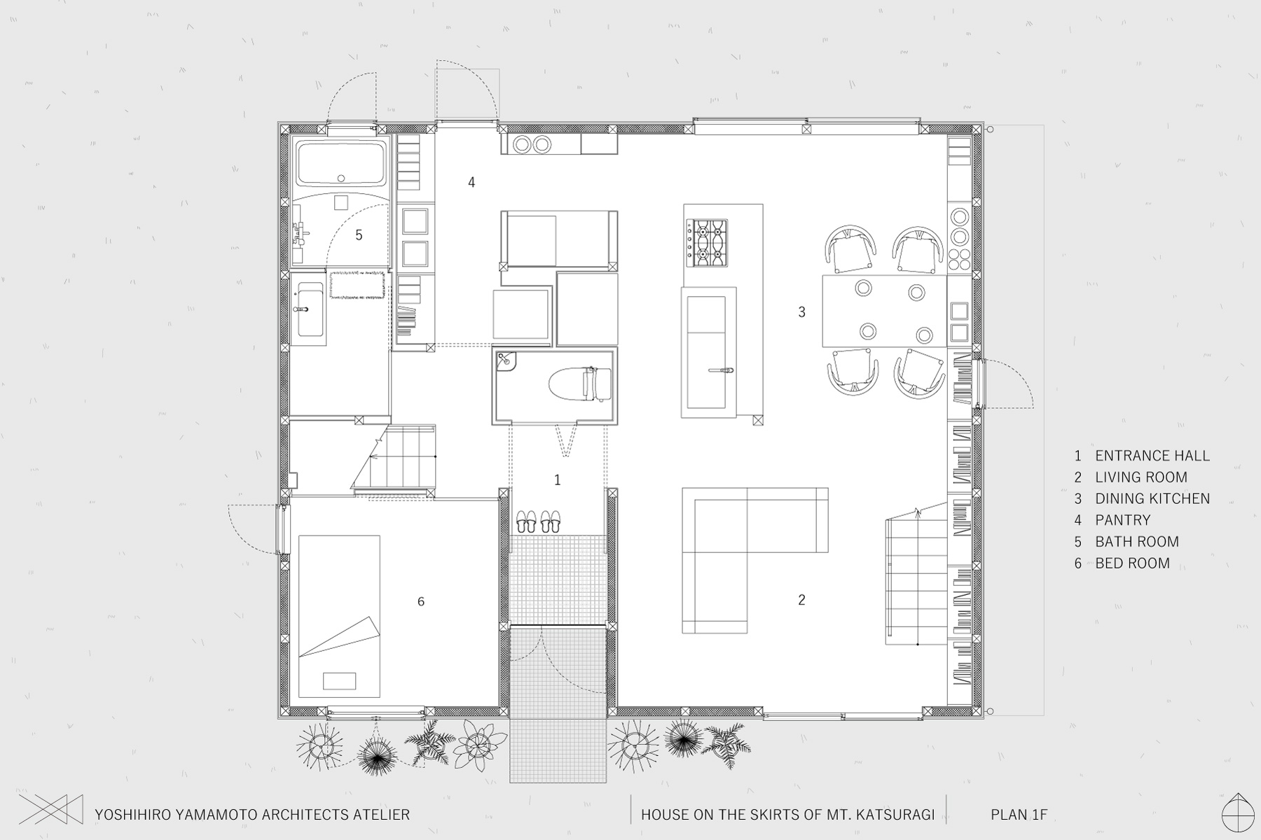
大和葛城山の東面に広がるなだらかな裾野。シンプルな三角屋根の下に、ご夫婦とお母さま、猫2匹が暮らしています。ご夫婦とお母さまの住まいは部分的に重なり合い、二世帯住宅というほど離れず同居というほど近くない、ちょうどよい距離感を保っています。ご夫婦の住まいは1階のLDKから、大きな窓と本棚のある吹き抜け階段を通って2階のランディング・寝室・水周りへつながります。お母さまの部屋は反対に1階を寝室と水周りとし、コンパクトなLDKを2階に配置しています。窓の外には田畑や葛城山の四季折々の風景が広がり、ゆっくりした時間が流れています。
This house is located at the eastern foot of Mt.Katsuragi in Nara, Japan. A couple, their mother, and two cats live under a simple triangular roof. The couple’s and mother’s areas are partially independent and partially overlapping. The couple’s areas are the living room on the first floor with large windows and bookshelves, and the landing, bedroom, and bathroom on the second floor. The mother’s room is the opposite, with the bedroom and bathroom on the first floor and the compact living room on the second floor. The entrance, laundry, and pantry are shared. Outside the window, the seasonal scenery of rice fields and Mt. Katsuragi spreads out, and time passes slowly.































- 概要
-
計画|2016-2021 所在地|奈良県御所市 家族構成|ご夫婦・お母様・猫2匹 構造規模|木造2階 用途|一戸建ての住宅 敷地面積|210坪[700m2] 延床面積|40坪[120m2] 施工床面積|40坪[140m2]
- 協働
-
設計|山本嘉寛・三橋香織[YYAA] 施工|[福本工務店] ビルトインオーブンキャビネット|[KANWORKS] 表札金物|[bowlpond] 撮影|笹倉洋平[笹の倉舎]
- 掲載
-
アーキテクトビルダー[新建新聞社](2024) Houser/KR(2023) Gooood/CH(2023) HOUSING by SUUMO[リクルート](2023.8,2023.10) 注文住宅 by SUUMO[リクルート](2022)




![掲載|注文住宅 by SUUMO [リクルート]2022年春夏号|山本嘉寛建築設計事務所YYAA](https://yyaa.jp/wp-content/uploads/2022/04/220423suumo注文住宅bySUUMO.jpg)