
街と住まいと暮らしの今まで・これから
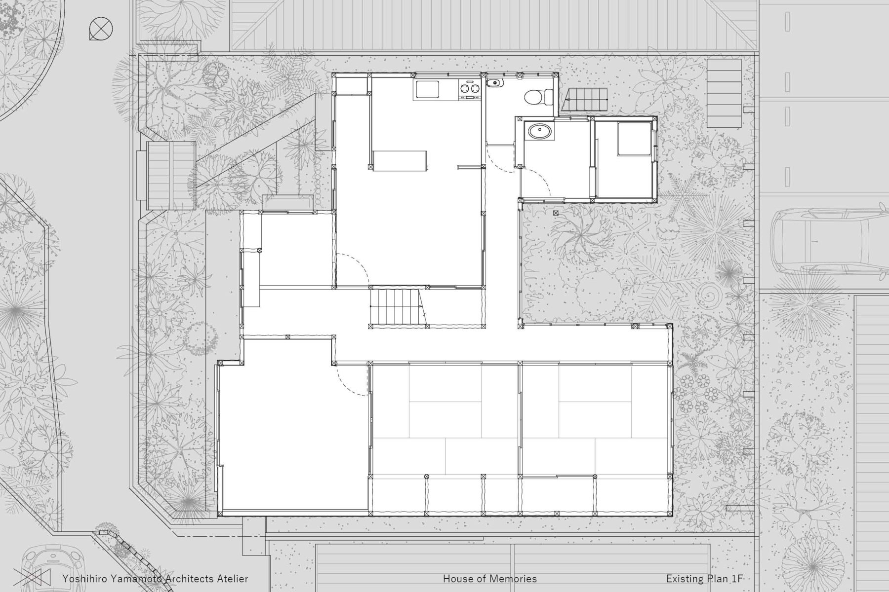
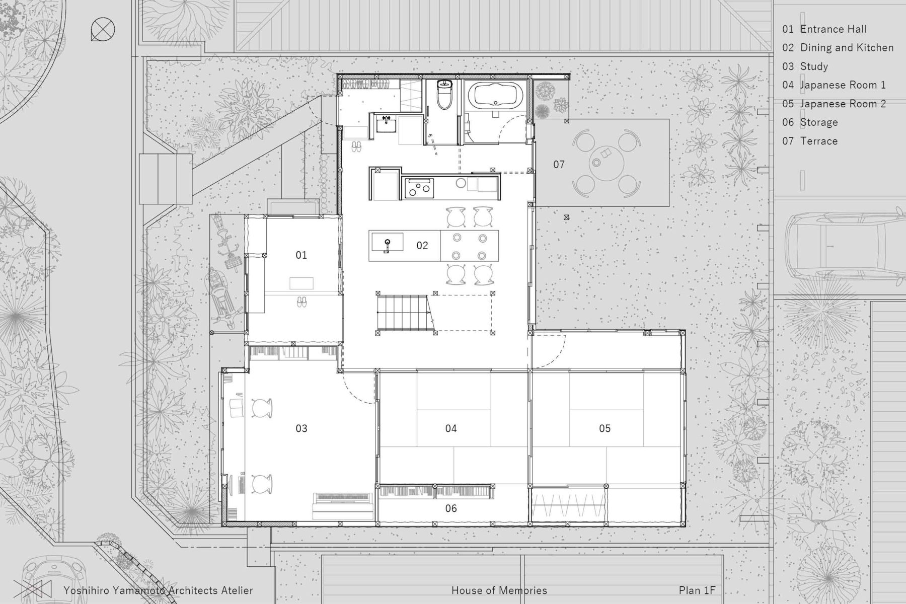
奈良市菖蒲池。若いご夫婦とお子様たちのための古家改修です。ご主人は幼少期をここで過ごした後、東京で暮らしておられましたが、仕事や子育ての環境を見直して奈良に戻り、空き家となっていた家を改修して住むことになりました。昭和初期に建てられた家は今まで何度か増改築されているらしいとの事でしたが、内装の大部分は新建材で覆われ、昔の記憶は曖昧で図面資料もありません。ただ一部がスキップフロアやオーバーハングになったつくりには単純なリフォームではない雰囲気があり、床の間や欄間、軒裏の細やかな意匠、玄関や階段を建物中央に配置して廊下を巡らせた間取りに何となく旅館のような風情も感じられました。本格的に設計に着手し、既存建物の実測調査や部分解体を進めると、壁や天井の中に隠れていた痕跡が次々と現れました。土間の炊事場と板間の小上がりをダイニングキッチンに改造した跡、濡れ縁をアルミサッシで室内化した跡、応接間を増築した跡、平屋の屋根を取り外して2階に子供部屋・納戸を建て増しした跡・・・。これらは工事の記録であると共に、かつて営まれていた温かい暮らしの記録でもあります。様々な過去の記録を明らかにして、それらと共に暮らし、これから始まる生活の記録が書き加えられていくような住まいの在り方が良いのではないかと思われました。耐震補強を行いながら、コンパクトな水廻りとアイランドキッチン、スケルトン化した既存階段の周りを自由に行き来できる間取りに改編し、二間の和室を取り込んで大きな居間をつくりました。庭に増築されていた建物は上屋を除却し、基壇を再利用してウッドデッキを貼りました。将来的にオフィスに転用できるよう応接間はレトロな内装のまま造作家具でワークスペースに転用し、立派な構えの表玄関は来客用に残して、家族用玄関を脇に新設しました。古い柱梁は傷んだ部分を継ぎながら出来る限り再利用し、新たに加えた部材は古色に擬態せず素地色のまま用いています。新建材はできるだけ剥がし、木材・土壁・セメント板・スチール等、暮らしの痕が残る素材を用いました。菖蒲池にはかつて家族連れでにぎわった遊園地がありましたが、更に遡って戦前には村野藤吾設計の大きな温浴施設があり、旅館と民家が混在した華やかな街並みが形成されていました。確かに当時の面影を残す家屋がいくつか現存しており、この住宅もその名残の1つなのかもしれません。100年の街と家族の記憶を纏った建築が新たな時を刻み、これからも長く愛されることを願っています。




This project is a renovation of a traditional Japanese house in Nara, Japan for a young couple and their children. The husband spent his childhood here and later his family lived in Tokyo, but in order to improve their work and lifestyle, they decided to renovate the vacant house and move in.The house was built around 1930 and had been extended and remodeled several times, and there were no drawings or other documents available. When we removed the finishes to investigate, the history of the old renovations was revealed one after another in the floors, walls, and ceilings. The earthen floor had been renovated into a kitchen and dining room, “engawa” ? a semi-outdoor deck ? had been converted into an interior, the guest room had been enlarged, and the first story had been converted into a second story by removing the roof and building a nursery and closet. These are not only records of the renovation work, but also memories of heartwarming family life. So we designed the house to reveal various records and memories of the past, so that they can coexist with them and they can add new records of their lives.The traditional entrance was repaired for guests and a new entrance was added for the family. The stairway was reused, the earth walls on either side were removed, and the kitchen, dining room, and Japanese-style room were reorganized into one large space. The guest room was converted to a small office, keeping the Showa-era interior. The old sanitary room was demolished and a wooden deck was installed on its foundation. Old columns, beams, and doors were repaired and reused, and newly added materials were used in their original colors without mimicking the old colors.We hope that this house will continue to be loved and add to the memory of the town and the family.



















- 概要
-
計画|2019-2021 所在地|奈良市 家族構成|ご夫婦・子供2人 構造規模|木造2階 用途|一戸建ての住宅 敷地面積|60坪[200m2] 延べ面積|50坪[180m2] 施工床面積|30坪[110m2]
- 協働
-
設計監理|山本嘉寛・文野智大[YYAA] 施工|[青山工務店] 撮影|笹倉洋平[笹の倉舎]
- 受賞
-
住まいのリフォームコンクール優秀賞(2022)
- 掲載
-
アーキテクトビルダー[新建新聞社] リノベーション・ジャーナル[新建新聞社] TECTURE MAG(2023) architecturephoto(2022) Designboom/IT(2022) Architizer/US/featured(2022)

![2023.08 リノベーション・ジャーナル vol.18 [新建新聞社] 昭和小路の長屋、昭和小路の長屋Ⅲ、めもりの家](https://yyaa.jp/wp-content/uploads/2023/08/renovejournal.jpg)


